
Struggling with inaccurate designs or feeling overwhelmed by in-house drafting demands is common for architects, contractors, and developers managing complex projects. Quality CAD drawing services are essential, but they can often be challenging to produce in-house.
Errors in engineering drawings or floor plans can lead to costly delays, missed deadlines, and compromised building quality.
When accuracy and adherence to building specifications are non-negotiable, relying on subpar CAD drafting services or attempting to handle everything internally risks project timelines, client satisfaction, and your reputation.
Without a dedicated CAD design service partner, projects often encounter rework, inconsistent blueprints, and errors in technical drawings. These issues drain resources and escalate costs, leaving both clients and project teams dissatisfied.
At Drafting Consultants, we specialize in architectural CAD drafting services that prioritize quality and precision. With an office in San Francisco, California, we are serving clients across the U.S. and Canada. Our outsourced CAD drawing services deliver the accuracy and efficiency your projects require.
Whether you need detailed architectural CAD drawings, CAD to BIM services, or structural CAD services, our team of skilled drafters and designers works closely with your architects and engineers to bring every aspect of your project to life.
Quality and precision are at the core of our CAD drawing services. Our team leverages state-of-the-art CAD software and the latest AutoCAD drafting services tools to ensure that every drawing meets rigorous industry standards and project requirements.
Each member of our CAD drafting team is highly skilled in rendering and detailing, providing engineering drawings that enhance project visualization and simplify the construction process. Our commitment to accuracy saves you time and resources, minimizing the risk of rework and ensuring project timelines remain on track.
Choose Drafting Consultants for reliable CAD drawing services that combine accuracy, technology, and industry expertise to bring your projects to life.
Our CAD drafting services provide a comprehensive solution for professionals in architecture, engineering, and construction.
By outsourcing your CAD design service needs to us, you’ll gain access to advanced CAD software, specialized expertise, and a team of skilled CAD designers near me in San Francisco dedicated to precision and quality at every stage.
Our team of CAD drafting professionals brings years of experience and a commitment to excellence, ensuring your CAD drawings are both timely and meticulously accurate.
At Drafting Consultants, we offer a comprehensive range of CAD drafting services that cater to every architectural and engineering requirement. With our architectural CAD drafting services, we deliver precision and clarity that serve as the foundation for successful construction projects.
Our services are designed for manufacturers, architects, engineers and contractors who demand the best in quality and efficiency.
Partner with Drafting Consultants for reliable, detail-oriented CAD drawing services that keep your projects on time and within budget. Whether you need architectural CAD drawings, autocad shop drawings services near me in San Francisco, CAD to BIM services, or structural CAD expertise, our skilled team is here to help.
Contact us today at 800-494-6186 to discuss your project’s unique requirements and discover how our CAD design services can bring your vision to life with unmatched accuracy.
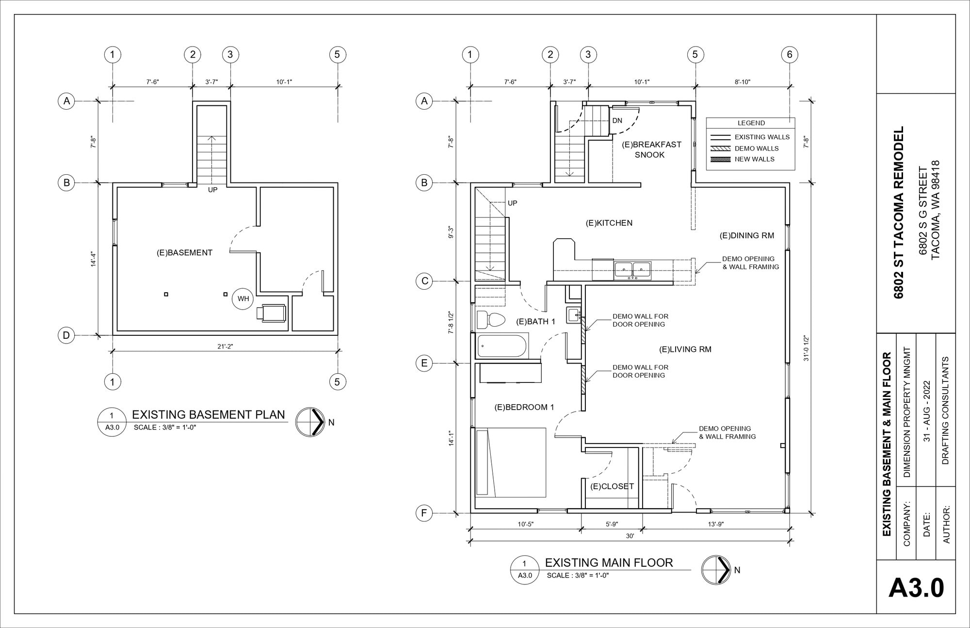
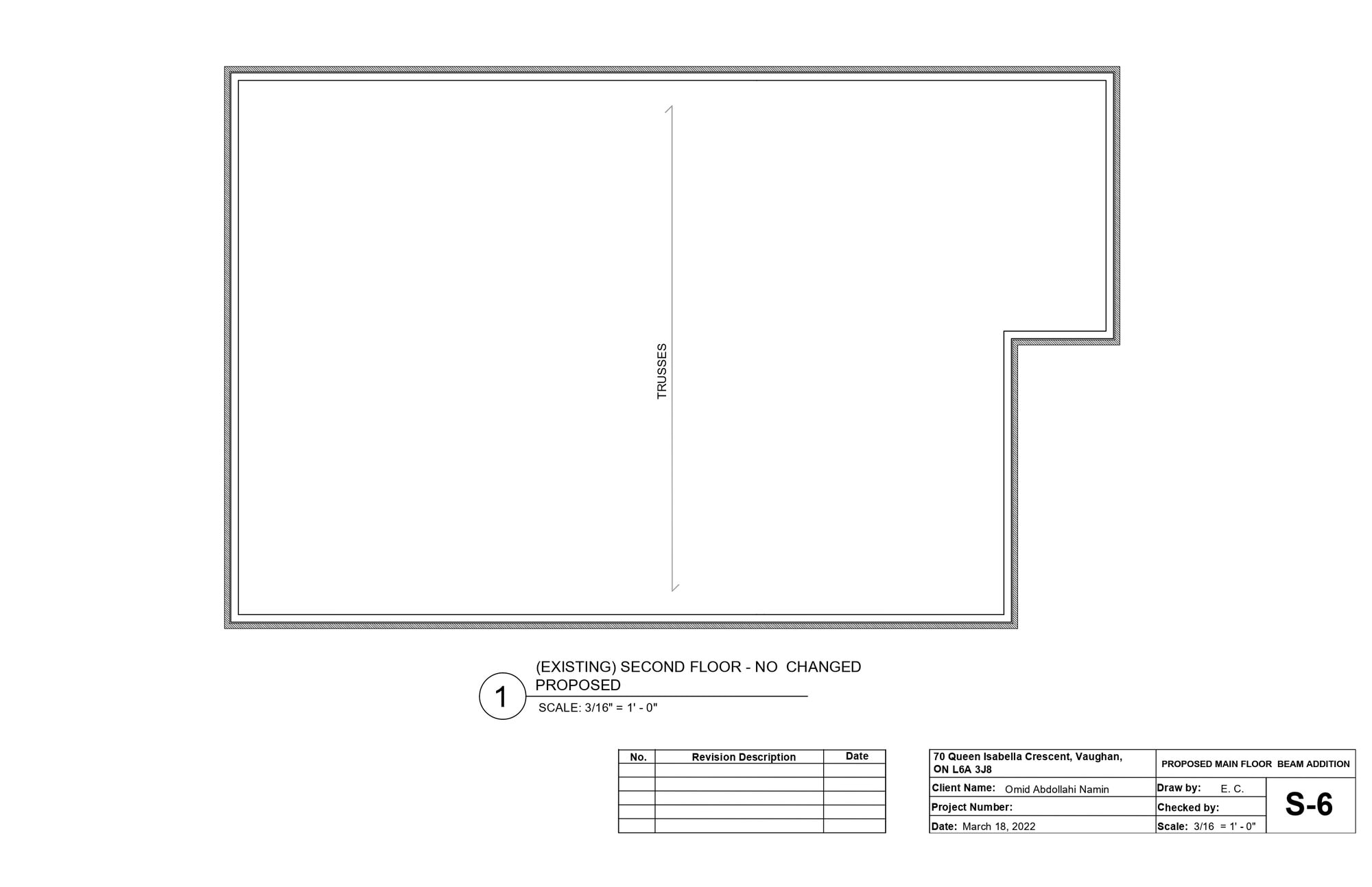
Our CAD drawing services cover a wide range of needs, including architectural CAD drawings, CAD to BIM services, structural CAD services, and CAD conversion services. We create accurate blueprints, floor plans, and engineering drawings to support various industries, from architecture and engineering to construction and manufacturing.
We prioritize quality and precision through a rigorous quality control process that includes detailed reviews and verification checks. Using the latest CAD software and AutoCAD tools, our team ensures that every drawing meets industry standards and project specifications, minimizing errors and supporting efficient project timelines.
Yes, our CAD to BIM services enable a seamless transition from CAD drawings to Building Information Modeling (BIM). This conversion enhances project integration, providing cohesive blueprints, floor plans, and improved visualization for more streamlined project management and collaboration.
Our CAD drawing services are designed for architects, contractors, developers, and engineers who require high-quality, precise CAD support. We cater to a diverse range of industries and project types, including residential, commercial, and industrial projects across the U.S. and Canada.
Outsourcing your CAD needs to Drafting Consultants provides access to advanced CAD technology, a team of skilled drafters and designers, and a commitment to accuracy at every stage. Our clients save time and resources, reduce errors, and ensure that their projects remain on schedule and within budget by relying on our dedicated CAD drafting expertise.